

倘若您有什么疑問或是對我公司有任何
的意見和建議都可通過:
的意見和建議都可通過:
公司名稱: 鞏義市西村鎮華豐給排水材料廠
公司地址: 河南省鞏義市西村開發區
電話: 0371-64033589
手機: 18638168566,13683712868
13783416000(技術)
聯系人: 王先生,位女士
郵政編碼: 451200
E-MAIL: 1696257948@qq.com
網址:http://www.anhuo8.com/
網址:http://www.anhuo8.com/
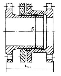
RS型柔性套管式伸縮器
標簽:該產品可按照客戶要求訂做,如需訂做請向客服提供您的參數表
華豐竭誠為您服務,熱線電話0371-64033589
名稱:RS型柔性套管式伸縮器
我廠生產柔性套管式伸縮器,技術雄厚,流程精湛、設備齊全,RS型柔性套管式伸縮器具有一定的科學性,RS型柔性套管式伸縮器、CS型熱力伸縮器、SSQ型限位防拉脫伸縮器、管道伸縮器、法蘭限位伸縮器是通過國家認證的主導產品,RS型柔性套管式伸縮器使用壽命長、方便、耐用、耐壓、耐腐,耐高溫等性能,質高價優是您理想的選擇,RS型柔性套管式伸縮器讓您買得放心、用的舒心。
柔性套管式伸縮器描述:
1.RS型柔性套管式伸縮器解決了原套管式伸縮器不產生偏角的問題,本產品大偏角可達5.85度;
2.表中長度數值,均系無偏角時的數值;
3.本伸縮器由橡膠圈密封,伸縮器本身不能承受軸向拉力,一般將它安裝在平直觀點管道上。若靠近彎管或丁字管安裝則應設置管道支墩,以免將伸縮器拉脫而漏水;
4.本伸縮器中單盤短管可用外徑的鑄鐵直管代替;
5.法蘭連接尺寸采用GB2555—81標準;
公稱通徑DN |
長度 |
重量(Kg) | ||
Lmin |
L |
Lmax | ||
40 |
140 |
160 |
180 |
8.3 |
50 |
145 |
165 |
185 |
10.8 |
65 |
145 |
165 |
185 |
13.6 |
80 |
160 |
180 |
200 |
17.2 |
100 |
170 |
190 |
210 |
20.4 |
125 |
170 |
190 |
210 |
24.9 |
150 |
175 |
195 |
215 |
31.8 |
200 |
180 |
200 |
220 |
42.6 |
250 |
235 |
260 |
285 |
59.5 |
300 |
250 |
280 |
310 |
73.8 |
350 |
265 |
300 |
335 |
97.1 |
更多產品詳情可來電咨詢
聯系人:王先生 13783416000 魏女士 13683712868
上一篇:SSQ型鑄鐵伸縮器
下一篇:S313伸縮器
版權所有:華豐管道 地址:河南省鞏義市西村開發區 服務熱線:0371-64033589 管理入口E-MAIL: 1696257948@qq.com 手機: 18638168566,13783416000
網站備案/許可證號: 豫ICP備11026537號-5
豫公網安備 41910102000259號 技術支持:鞏義開啟網絡
本網站支持新廣告法,為不影響客戶瀏覽,頁面區域用詞正在排查修改,本店所有頁面絕對化用詞和功能性用詞在此聲明前全部失效,不接受不妥協任何形式的絕對化用詞和功能性用詞賠付,希望各位消費者理解,職業打假人高抬貴手。 網站備案/許可證號: 豫ICP備11026537號-5
